
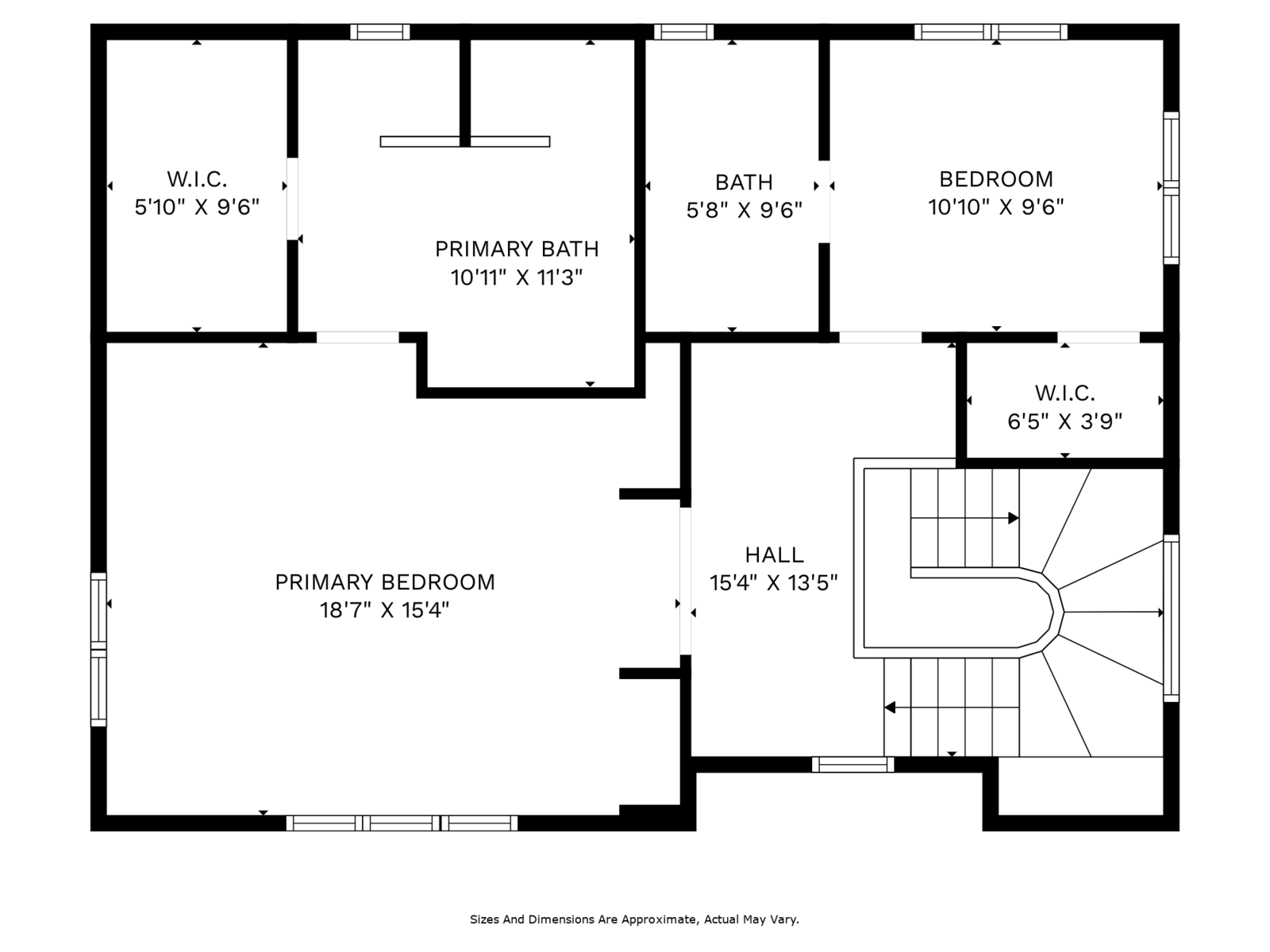
Beautifully updated home on a quiet and wonderful cul-de-sac within close proximity to Downtown Los Gatos. Open concept kitchen and family room with an abundance of natural light. The completely remodeled kitchen features white quartz countertops, designer hardware, a large island with bar seating and dining area that opens to the welcoming back patio. Family room features custom built-in bookshelves surrounding the tile detailed insert fireplace. Hardwood flooring throughout. Spacious primary suite with built-in desk, Juliette balcony and large walk-in closet. Primary bathroom with large soaking tub, separate glass enclosed shower and dual sink vanity. Second bedroom on upper level has en-suite bedroom. En-suite bedroom on lower level. New Carpeting in all four bedrooms. Freshly painted exterior and interior. Private backyard with stone patio, covered outside dining and BBQ area. Beautiful and fresh landscaping. Finished shed is perfect for an office or workshop. Terrific curb appeal with paver driveway. Close to Los Gatos HS, Fisher Middle and Van Meter Elementary